
Dokkum
Grote Breedstraat 23, 23A en 25 0 ong

Bekijk 42 foto's

Bekijk 42 foto's

Bekijk 42 foto's
Interesse?
Neem contact met ons op. We geven graag meer informatie of plannen een bezichtiging.
Grote Breedstraat 23, 23A en 25 0 ong
Omschrijving
Grote Breedstraat 23, 23A en 25 0 ong
Kenmerken
- Prijs
- € 625.000 k.k.
- Status
- Verkocht
- Oplevering
- in overleg
Overdracht
Bouw
- Hoofdbestemming
- Winkelruimte
- Nevenbestemming(en)
- Winkelruimte
- Soort bouw
- Bestaande bouw
- Onderhoud binnen
- Redelijk
- Onderhoud buiten
- Redelijk
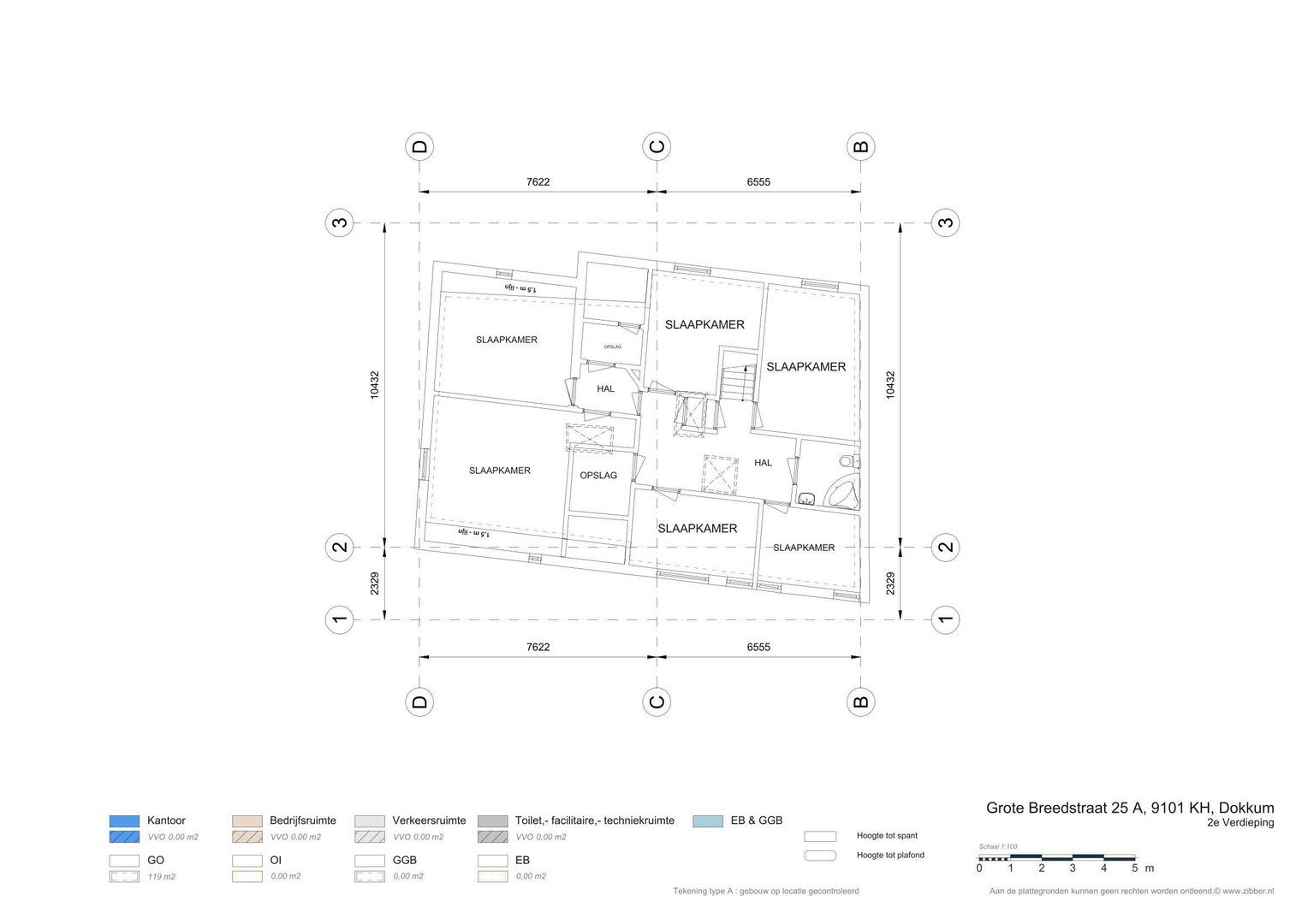
Oppervlakten
- Totaaloppervlakte
- 438m²
- Verkoopoppervlakte
- 249m²
Indeling
- Verdiepingen
- 2
Energie
- Energielabel
- E
Omgeving
- Welstandklasse
- A1
Grote Breedstraat 23, 23A en 25 0 ong
Locatie
[
{
"lat":"53.3266715", "lng":"5.9995994" }
]
Grote Breedstraat 23, 23A en 25 0 ong