 
			Dokkum
Legeweg 37
 
								
									Bekijk 37 foto's
							
						 
														
								Bekijk 37 foto's
								
													 
															
									Bekijk 37 foto's
							
													Interesse?
Neem contact met ons op. We geven graag meer informatie of plannen een bezichtiging.
Omschrijving
Kenmerken
- Prijs
- € 475.000 k.k.
- Status
- Beschikbaar
- Oplevering
- In overleg
- Adres
- Legeweg 37
- Postcode
- 9101 MB
- Plaats
- Dokkum
Aanvaarding
Bouw
- Soort woonhuis
- Eengezinswoning, Tussenwoning
- Soort bouw
- Bestaande bouw
- Bouwjaar
- 1955
- Onderhoud binnen
- Goed
- Onderhoud buiten
- Goed
- Bijzonderheden
- Beschermd stads- of dorpgezicht
Oppervlakten en inhoud
- Woonoppervlakte
- ca. 121 m²
- Overig oppervlakte
- ca. 136 m²
- Oppervlakte woonkamer
- ca. 37 m²
- Inhoud
- ca. 865 m³
- Perceeloppervlakte
- ca. 188 m²
Indeling
- Aantal kamers
- 8
- Aantal slaapkamers
- 4
- Aantal badkamers
- 1
- Aantal verdiepingen
- 4
- Voorzieningen
- Mechanische ventilatie, TV-Kabel, Natuurlijke ventilatie
Energie
- Energielabel
- D
- Isolatie
- Muurisolatie, Dubbel glas, HR-glas
- Warm water
- C.V.-ketel
- Verwarming
- C.V.-ketel, Vloerverwarming gedeeltelijk
- Ketel
- Remeha (2014, Combi-ketel, Huur)
Buitenruimte
- Ligging
- In centrum
- Tuin
- Achtertuin, Zonneterras
Garage
- Soort garage
- Inpandig
- Capaciteit
- 10
Legeweg 37
Locatie
                                
									[
									{
                                	"lat":"53.3263712",                                	"lng":"5.9959181"									}
									]
                                
							
						
						Legeweg 37
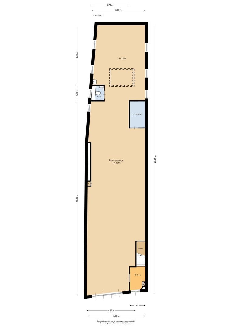
Plattegronden
Legeweg 37
Vergelijkbare woningen
Legeweg 37
 
									 
									 
									 
									 
									 
									 
									 
									 
									 
									 
									 
									 
									 
									 
									 
									 
									 
									 
									 
									 
									 
									 
									 
									 
									 
									 
									 
									 
									 
									 
									 
									 
									 
									 
									 
									 
							 
							 
							 
							 
							 
							 
							 
							 
		 
		 
		